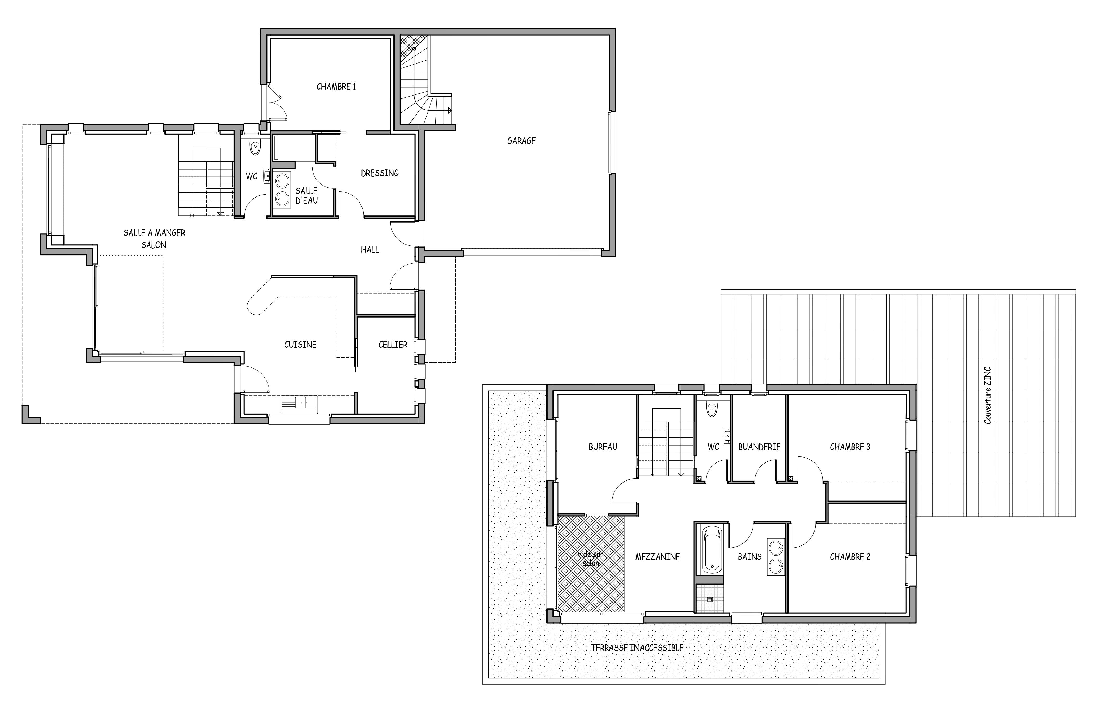
Maison contemporaine à toit plat et toit mono-pente sur garage accolé de 163m² sur sous-sol, elle ravira une famille avec sa suite parentale complète au rdc et ses 2 chambres à coucher, sa salle de bain et son bureau à l’étage.
Exterieur



Interieur



Ses nombreuses baies vitrées avec BSO (Brise soleil orientable) invite la nature à pénétrer la maison.
Une magnifique mezzanine ouvrant sur un vide sur salon créant ainsi un espace de liberté.

